Ismertető
Előnyök amelyek Önre és családjára várnak:
- Az ingatlan a Malom Központtól mindössze 3 percre van gyalog,
- Az ingatlan a város központjában helyezkedik el, mégis egy csendes, nyugodt kis utcában található.
- Tágas tér
- A házban a világos falak és a nagy ablakok a tágas tér érzetét keltik, sok bejutó fényt biztosítva ezzel.
- Kellemes, mediterrán hangulatú udvar
- Az udvarban van lehetőség 3 autó parkolására is, illetve a zöld terület mellett egy terasz is kapott helyet.
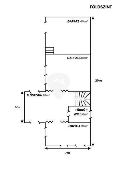
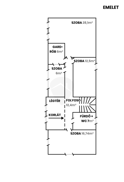
- Számtalan szoba, a 13 helyiség tartalmaz 2 légkondícionált hálószobát, 2 fürdőszobát, gardróbot, vendégszobát és dolgozószobát is.
- Kikapcsolódási lehetőségek sokasága, a pincében található egy konditerem, illetve egy biliárdterem bárral, a kikapcsolódási igényeket kielégítve.
- Alacsony rezsi
2019-ben beüzemelt kombi kazán biztosítja a földszinten és az emeleten a padlófűtést, a földszinten fatüzelésű kandallóval kiegészítve. Az alagsori helyiségek egyedi szabályozással a központi fűtéshez kapcsolódó radiátorokkal fűthetők. Az egyenletes nyári hőmérsékletet két inverteres klíma biztosítja.
- Biztonság: a kerítés infrasorompóval, a lakóház behatolásjelző rendszerrel védett.
Mindenféleképp nézze meg ezt az ingatlant ha egy igazán stílusos, belvárosi ingatlanban szeretne lakni Kecskemét történelmi belvárosában.
Várom megtisztelő hívását.
Mit nyújtok a vevő ügyfeleimnek?
- szakszerű, költségmentes ingatlan mutatást
- jogi biztonságot, elektronikus aláírással
- csak azt az ingatlant mutatom ami a keresési paraméternek megfelelő
- 10 pontos ingatlanértékelést
- ingatlan szakjogász kiajánlását
- hitelfelvételi tanácsadást
Ha van eladó ingatlanja és szeretné szakszerűen, hatékonyan eladni, akkor - mint Magán Ingatlanértékesítő korrekt együttműködéssel, - fogom elősegíteni, hogy határidőre elérje céljait.
Részletek
-
Építés éve:
1985 -
Szobák száma:
6 -
Állapot:
jó -
Fűtés:
cirkó -
Épület típusa:
családiház -
Terasz:
15 m2 -
Kilátás:
kertre néz -
Tájolás:
DK -
Telekméret:
384 m2 -
Övezet:
nincs adat -
Tetőtér:
nincs adat
